Beschreibung
Cette jolie villa mitoyenne est située sur une parcelle au nord de Lutry. Construite en 1989, elle a été en grande partie rénovée ces quatre dernières années et se trouve dans un état impeccable.
Cette maison est construite sur plusieurs demi-niveaux, ce qui lui confère beaucoup de charme. Le rez-de-chaussée est composé de la cuisine habitable, de la salle à manger et du salon, alors que les chambres à coucher se trouvent sur les étages supérieurs. Grâce à sa surface habitable de 220 m2, cette villa est idéale pour une famille.
A l'extérieur, deux terrasses ont été aménagées et profitent d'une magnifique vue sur le lac et les Alpes.
2 garages box complètent ce bien.
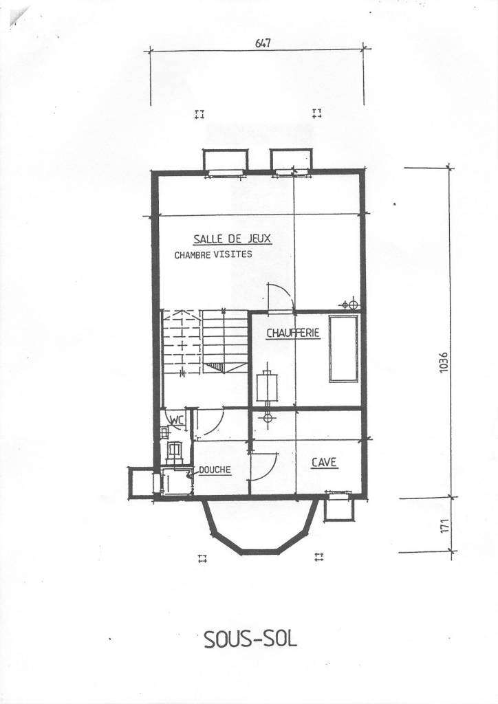
Rez inférieur :
Chambre à coucher - Salle de douche avec toilettes - Buanderie - Chaufferie
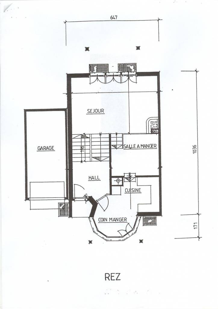
Rez-de-chaussée :
Hall d'entrée - Cuisine habitable - Salle à manger - Salon avec cheminée
1er étage :
Chambre à coucher parentale avec - Salle de bains avec toilettes en suite - 2 Chambres à coucher - Salle de douche avec toilettes
2eme étage :
Chambre à coucher
Annexes :
2 Garages box
Parties communes :
Abri container
Parties communes :
Abri container - 3 Places de parking visiteurs
Cette maison est construite sur plusieurs demi-niveaux, ce qui lui confère beaucoup de charme. Le rez-de-chaussée est composé de la cuisine habitable, de la salle à manger et du salon, alors que les chambres à coucher se trouvent sur les étages supérieurs. Grâce à sa surface habitable de 220 m2, cette villa est idéale pour une famille.
A l'extérieur, deux terrasses ont été aménagées et profitent d'une magnifique vue sur le lac et les Alpes.
2 garages box complètent ce bien.
Rez inférieur :
Chambre à coucher - Salle de douche avec toilettes - Buanderie - Chaufferie
Rez-de-chaussée :
Hall d'entrée - Cuisine habitable - Salle à manger - Salon avec cheminée
1er étage :
Chambre à coucher parentale avec - Salle de bains avec toilettes en suite - 2 Chambres à coucher - Salle de douche avec toilettes
2eme étage :
Chambre à coucher
Annexes :
2 Garages box
Parties communes :
Abri container
Parties communes :
Abri container - 3 Places de parking visiteurs














