Beschreibung
Situé à mi-chemin entre Nyon et Gland, ce spacieux appartement de 4.5 pièces se situe au dernier étage d’une résidence sécurisée. Il bénéficie d’une très belle luminosité tout au long de la journée. Sa situation calme et proche de la nature, permet de profiter pleinement de la terrasse de plus de 30 m2 avec vue sur les Alpes.
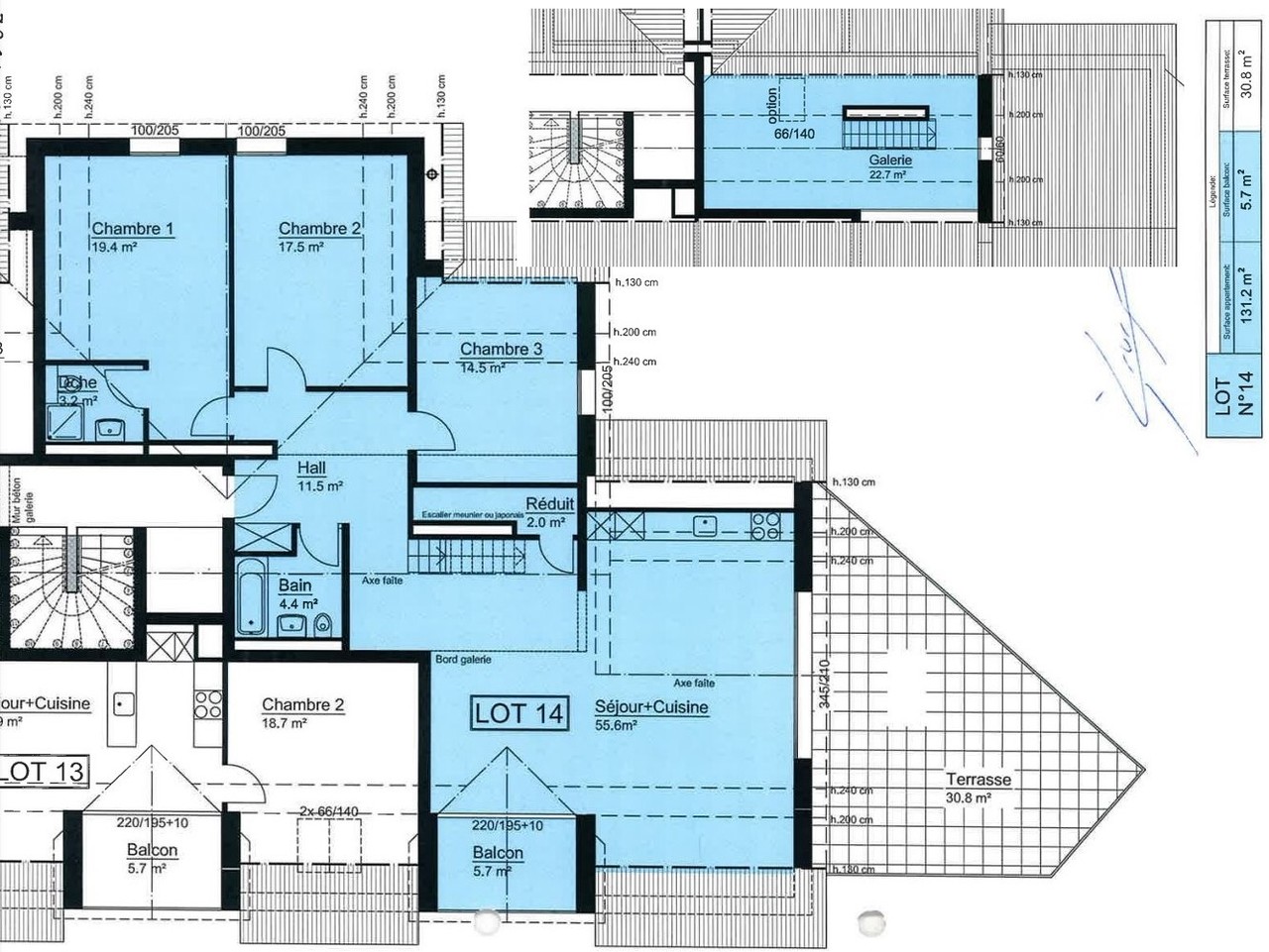
Une grande cuisine familiale avec un îlot central s’ouvre sur le séjour chaleureux. En complément des 3 chambres à coucher, une mezzanine de 22 m2 peut servir de salon télévision ou de salle de jeux.
Une cave et une buanderie commune sont à disposition. Deux places de parking (intérieure et extérieure) sont en sus (CHF 35’000.-)
Le village de Bassin est facilement accessible en car postale et bénéficie de toutes les infrastructures telles que : garderie, école et commerces. Les axes autoroutiers se trouvent à seulement 9km.
A visiter sans tarder !
Une grande cuisine familiale avec un îlot central s’ouvre sur le séjour chaleureux. En complément des 3 chambres à coucher, une mezzanine de 22 m2 peut servir de salon télévision ou de salle de jeux.
Une cave et une buanderie commune sont à disposition. Deux places de parking (intérieure et extérieure) sont en sus (CHF 35’000.-)
Le village de Bassin est facilement accessible en car postale et bénéficie de toutes les infrastructures telles que : garderie, école et commerces. Les axes autoroutiers se trouvent à seulement 9km.
A visiter sans tarder !
Konstruktion
Konstruktion
Construit en 2014 avec des matériaux de qualité, l'immeuble est très bien entretenu. Le parquet en chêne massif apporte une ambiance douce et chaleureuse.
Verteilung
1. Stock
-Hall d'entrée
-Chambre 1 (19.4 m2) avec sa salle de douche en suite
-Chambre 2 (17.5 m2)
-Chambre 3 14.5 m2)
-Salle de bains
-Réduit
-Séjour cuisine
-Balcon de 5.7 m2
-Terrasse 30.8 m2
-Chambre 1 (19.4 m2) avec sa salle de douche en suite
-Chambre 2 (17.5 m2)
-Chambre 3 14.5 m2)
-Salle de bains
-Réduit
-Séjour cuisine
-Balcon de 5.7 m2
-Terrasse 30.8 m2
Dachgeschoss
-Spacieuse mezzanine de 22.7 m2
Eigenschaften
Eigenschaften
Umgebung
- Dorf
- Ländlich
- Geschäfte
- Kinderfreundlich
- Spielplatz
- Kinderkrippe
- Kindergarten
- Primarschule
- Sportzentrum
- Freibad
- Wanderwege
- Radweg
Aussenbereich
- Dachterrasse
- Ruhige Lage
- Gedeckter Parkplatz
- Parkplatz
Innenbereich
- Lift
- Tiefgarage
- Offene Küche
- Keller
- Fahrradraum
- Einbauschrank
- Hell
Ausstattung
- Moderne Küche
- Kochinsel
- Private Waschküche
- Gemeinschaftswaschküche
- Dusche
- Badewanne
- Videotelefon
Boden
- Fliesen
- Parkett
Zustand
- Neuwertig
Ausrichtung
- Süden
Besonnung
- Optimal
- Ganzer Tag besonnt
Aussicht
- Schöne Aussicht
- See
- Berge
Stil
- Klassisch
Distanzen
Distanzen
Öffentliche Verkehrsmittel
109 m
Primarschule
1.83 km
Geschäfte
94 m










