Beschreibung
A moins d'une heure de l'aéroport international de Genève, à un jet de pierre de Gstaad et de Verbier, Montreux se blottit aux contreforts des Alpes et se mire dans les eaux du lac Léman. Cosmopolite, haut lieu de culture et de gastronomie, Montreux est également réputée pour l'excellence de ses écoles privées, de ses centres de santé et de remise en forme. Composé de belles pièces à vivre, cet appartement de 2.5 pièces saura vous séduire par ses nombreux atouts. Une place de parc intérieure ainsi qu’une cave complètent ce bien.
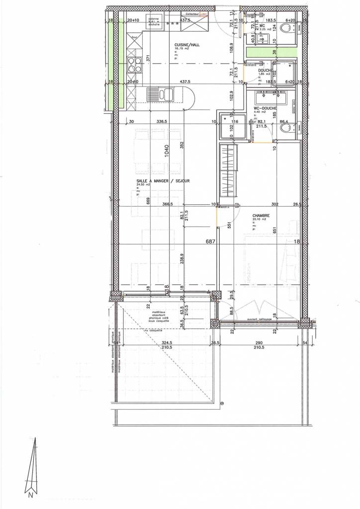
2ème étage :
Hall d'entrée - Toilettes - Salle de douche avec toilettes en suite dans la chambre à coucher - Dressing - Séjour avec coin à manger - Cuisine ouverte, équipée - Chambre à coucher - Balcon de 18.5 m²
Annexes :
Place de parking dans le garage collectif
Immeuble :
Spa de 350m2
2ème étage :
Hall d'entrée - Toilettes - Salle de douche avec toilettes en suite dans la chambre à coucher - Dressing - Séjour avec coin à manger - Cuisine ouverte, équipée - Chambre à coucher - Balcon de 18.5 m²
Annexes :
Place de parking dans le garage collectif
Immeuble :
Spa de 350m2









