Beschreibung
Jeune, dynamique et festive, Nyon est avant tout une cité à taille humaine. Entre Genève et Lausanne, la ville bénéficie du meilleur des deux mondes : quiétude et nature à proximité immédiate des grandes agglomérations. Logée au bord du lac Léman, parsemée de parcs et terrasses avenantes, Nyon offre à ses habitants les plus saisissants paysages de Romandie
Lieu de quiétude et d’harmonie, l’Emporium offre à votre famille le foyer rêvé. Projet immobilier important et avant-gardiste, cette promotion est basée tant sur votre rapport à la nature qu’au besoin de chacun de pouvoir accéder facilement aux villes internationales et aux prochains voyages.
Pensée afin de vous offrir un environnement sain, cette nouvelle réalisation est située en bordure de la ville, dans un cadre vert et respectueux de la nature. C’est dans cet esprit que le quartier abritant la résidence a été créé. Le complexe sera entièrement construit autour du « Parc du Reposoir » et de son bassin d’eau. Le grand axe aquatique collectera les eaux claires du futur quartier pour garantir la biodiversité et densifier le maillage écologique. Comme vos enfants, votre couple et vos ambitions, la résidence est destinée à grandir et à se bonifier avec les années.
Composée de 6 étages, la résidence bénéficie d’appartements de 3.5 à 4.5 pièces pour des surfaces habitables allant de 85 à 104 m2. Parfaitement finis à l’aide de matériaux de première qualité. L’Emporium vous ouvre les portes d’un futur plus beau.
www.emporium-nyon.ch
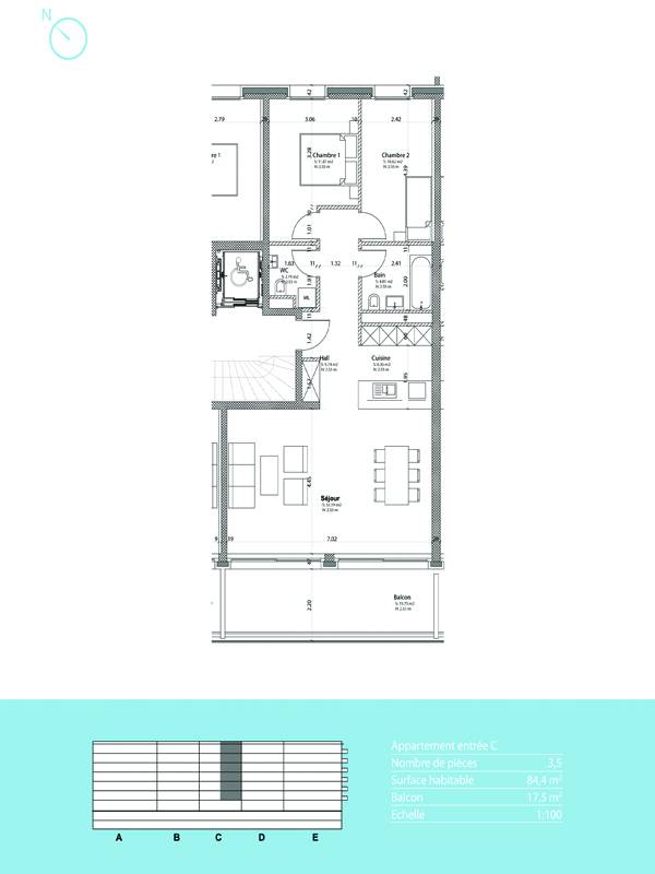
4ème étage :
Hall d'entrée avec penderie - Cuisine avec accès sur le balcon - Séjour avec accès sur le balcon - Chambre à coucher - Chambre à coucher - Salle de bains avec toilettes - Toilettes
Annexes :
Cave de 5.3 m²
Annexes :
Cave de 5.3 m² - Garage lot n°26 en sus
Immeuble :
Chaufferie
Immeuble :
Chaufferie - Local container
Lieu de quiétude et d’harmonie, l’Emporium offre à votre famille le foyer rêvé. Projet immobilier important et avant-gardiste, cette promotion est basée tant sur votre rapport à la nature qu’au besoin de chacun de pouvoir accéder facilement aux villes internationales et aux prochains voyages.
Pensée afin de vous offrir un environnement sain, cette nouvelle réalisation est située en bordure de la ville, dans un cadre vert et respectueux de la nature. C’est dans cet esprit que le quartier abritant la résidence a été créé. Le complexe sera entièrement construit autour du « Parc du Reposoir » et de son bassin d’eau. Le grand axe aquatique collectera les eaux claires du futur quartier pour garantir la biodiversité et densifier le maillage écologique. Comme vos enfants, votre couple et vos ambitions, la résidence est destinée à grandir et à se bonifier avec les années.
Composée de 6 étages, la résidence bénéficie d’appartements de 3.5 à 4.5 pièces pour des surfaces habitables allant de 85 à 104 m2. Parfaitement finis à l’aide de matériaux de première qualité. L’Emporium vous ouvre les portes d’un futur plus beau.
www.emporium-nyon.ch
4ème étage :
Hall d'entrée avec penderie - Cuisine avec accès sur le balcon - Séjour avec accès sur le balcon - Chambre à coucher - Chambre à coucher - Salle de bains avec toilettes - Toilettes
Annexes :
Cave de 5.3 m²
Annexes :
Cave de 5.3 m² - Garage lot n°26 en sus
Immeuble :
Chaufferie
Immeuble :
Chaufferie - Local container










