Beschreibung
Située dans le village d’Attalens, dans un quartier très calme et résidentiel, cette villa individuelle, entièrement rénovée, bénéficie d’un ensoleillement optimal. Le village d’Attalens dispose de toutes les infrastructures nécessaires. Cette spacieuse villa individuelle totalise 180 m2 habitables répartis sur deux niveaux + sous-sol. Construite en 1990 sur une belle parcelle de 1'303 m2, la villa a fait l’objet d’un agrandissement ainsi que d’une rénovation complète en 2008. Ce bien est complété par deux garages individuels, trois places de parc extérieures, un jacuzzi et un cabanon de jardin. Attalens se situe proche de la ville de Vevey, atteignable seulement en 15 minutes en voiture. Une ligne de bus relie également Vevey en 20 minutes.
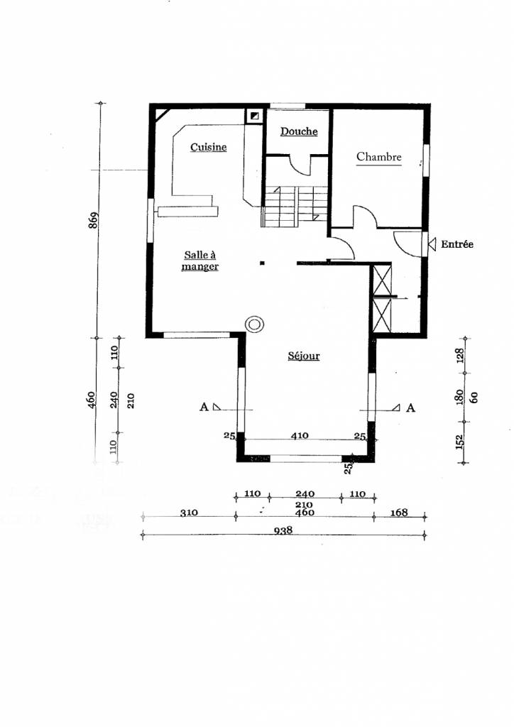
Rez-de-chaussée :
Hall d'entrée - Vestiaire - Séjour avec poêle suédois et accès jardin - Terrasse - Salle à manger - Cuisine ouverte entièrement équipée
Demi-niveau étage :
Salle de douche
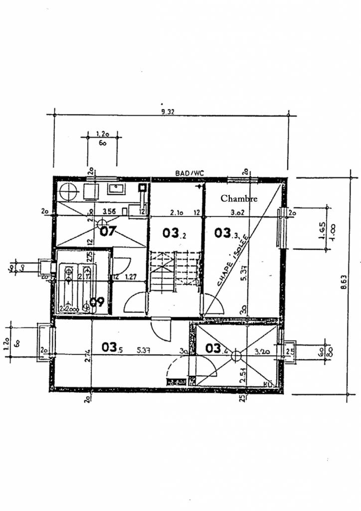
Etage :
Hall de distribution - 2 Chambres à coucher avec balcons - Chambre à coucher parentale - Salle de douche - Coin bureau - Galetas
Demi-niveau sous-sol :
Salle de bains - Chambre à coucher - Buanderie - Chaufferie - 2 Caves
Annexes :
Cabane de jardin
Annexes :
Cabane de jardin - 2 Garages individuels
Annexes :
Cabane de jardin - 2 Garages individuels - Piscine hors-sol
Annexes :
Cabane de jardin - 2 Garages individuels - Piscine hors-sol - 3 Places de parking extérieures
Annexes :
Cabane de jardin - 2 Garages individuels - Piscine hors-sol - 3 Places de parking extérieures - Terrasse - Jardin
Annexes :
Cabane de jardin - 2 Garages individuels - Piscine hors-sol - 3 Places de parking extérieures - Terrasse - Jardin - Jacuzzi
Rez-de-chaussée :
Hall d'entrée - Vestiaire - Séjour avec poêle suédois et accès jardin - Terrasse - Salle à manger - Cuisine ouverte entièrement équipée
Demi-niveau étage :
Salle de douche
Etage :
Hall de distribution - 2 Chambres à coucher avec balcons - Chambre à coucher parentale - Salle de douche - Coin bureau - Galetas
Demi-niveau sous-sol :
Salle de bains - Chambre à coucher - Buanderie - Chaufferie - 2 Caves
Annexes :
Cabane de jardin
Annexes :
Cabane de jardin - 2 Garages individuels
Annexes :
Cabane de jardin - 2 Garages individuels - Piscine hors-sol
Annexes :
Cabane de jardin - 2 Garages individuels - Piscine hors-sol - 3 Places de parking extérieures
Annexes :
Cabane de jardin - 2 Garages individuels - Piscine hors-sol - 3 Places de parking extérieures - Terrasse - Jardin
Annexes :
Cabane de jardin - 2 Garages individuels - Piscine hors-sol - 3 Places de parking extérieures - Terrasse - Jardin - Jacuzzi




















