Beschreibung
Cette villa individuelle de 6.5 pièces, construite sur une parcelle de 1'200 m2, bénéficie d'un cadre idyllique. Son orientation plein sud lui fait profiter d'une vue panoramique et imprenable ainsi que d'un ensoleillement optimal.
Elle est située proche du village de Chardonne, charmante bourgade nichée au coeur du vignoble où vous trouverez toutes les infrastructures telles qu'écoles, petits commerces, restaurants, pharmacie, etc.
La villa a été construite en 1973, de construction traditionnelle, elle a été régulièrement entretenue et rénovée partiellement en 2006. Il est important de relever que ce bien dispose d'un énorme potentiel d'agrandissement ou de reconstruction.
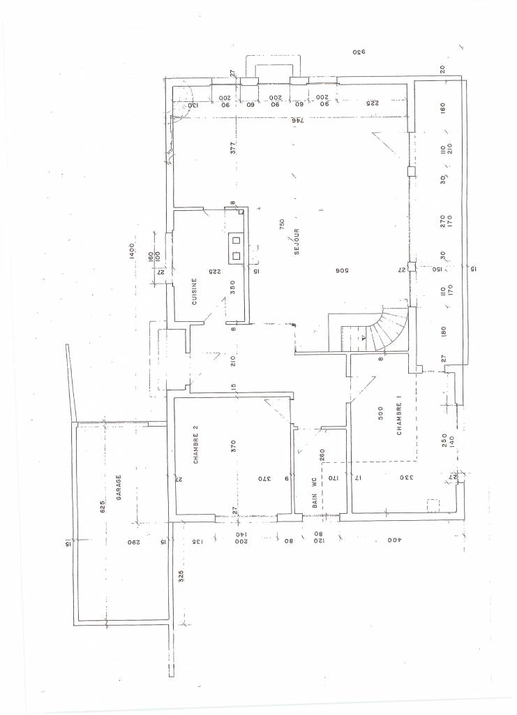
Rez-de-chaussée :
Séjour - 2 Chambres à coucher - Salle de bains avec toilettes - Cave - Buanderie - Local à mazout - Abri PC
1er étage :
Hall d'entrée - Séjour avec cheminée - Cuisine - 2 Chambres à coucher - Salle de bains avec toilettes - Balcon
Combles :
Galetas
Extérieur :
Jardin
Annexes :
Garage
Elle est située proche du village de Chardonne, charmante bourgade nichée au coeur du vignoble où vous trouverez toutes les infrastructures telles qu'écoles, petits commerces, restaurants, pharmacie, etc.
La villa a été construite en 1973, de construction traditionnelle, elle a été régulièrement entretenue et rénovée partiellement en 2006. Il est important de relever que ce bien dispose d'un énorme potentiel d'agrandissement ou de reconstruction.
Rez-de-chaussée :
Séjour - 2 Chambres à coucher - Salle de bains avec toilettes - Cave - Buanderie - Local à mazout - Abri PC
1er étage :
Hall d'entrée - Séjour avec cheminée - Cuisine - 2 Chambres à coucher - Salle de bains avec toilettes - Balcon
Combles :
Galetas
Extérieur :
Jardin
Annexes :
Garage












