Beschreibung
Située sur la charmante commune de Bogis-Bossey, cette jolie maison familiale se trouve au cœur d’un quartier calme et résidentiel. Les commerces de première nécessité sont à proximités dans le village. La commune est rattachée à l'établissement scolaire de Chavannes-de-Bogis.
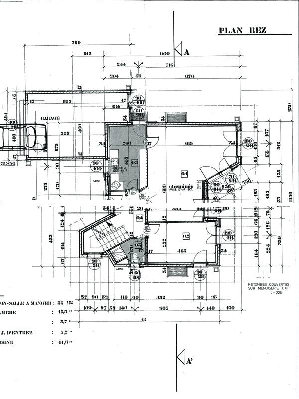
Cette villa d’architecture classique érigée sur une parcelle de 648 m2, dispose d’une généreuse surface habitable de 240 m2. La partie jour au rez est composée de beaux espaces de réception avec accès à la terrasse et au jardin.
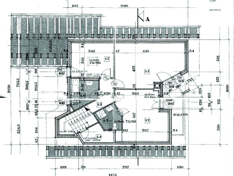
Quant à la partie nuit qui se situe à l’étage, elle compte 3 belles chambres dont 2 donnant accès à un balcon et bénéficie également d’un sous-sol complet.
Orientée plein Sud, elle profite d’un ensoleillement optimal.
Un garage pour 2 véhicules ainsi que deux places de parcs extérieures complètent ce bel objet.
Rez-de-chaussée :
Hall d'entrée - Séjour avec cheminée donnant sur la terrasse - Salle à manger donnant sur la terrasse - Cuisine aménagée et équipée - Salle de douche avec toilettes
Etage :
2 Chambres à coucher - Chambre à coucher avec sa salle de bains
Sous-sol :
Cave - Buanderie
Annexes :
Cabane de jardin
Annexes :
Cabane de jardin - Garage pour 2 véhicules
Parties communes :
2 Places de parking visiteurs
Cette villa d’architecture classique érigée sur une parcelle de 648 m2, dispose d’une généreuse surface habitable de 240 m2. La partie jour au rez est composée de beaux espaces de réception avec accès à la terrasse et au jardin.
Quant à la partie nuit qui se situe à l’étage, elle compte 3 belles chambres dont 2 donnant accès à un balcon et bénéficie également d’un sous-sol complet.
Orientée plein Sud, elle profite d’un ensoleillement optimal.
Un garage pour 2 véhicules ainsi que deux places de parcs extérieures complètent ce bel objet.
Rez-de-chaussée :
Hall d'entrée - Séjour avec cheminée donnant sur la terrasse - Salle à manger donnant sur la terrasse - Cuisine aménagée et équipée - Salle de douche avec toilettes
Etage :
2 Chambres à coucher - Chambre à coucher avec sa salle de bains
Sous-sol :
Cave - Buanderie
Annexes :
Cabane de jardin
Annexes :
Cabane de jardin - Garage pour 2 véhicules
Parties communes :
2 Places de parking visiteurs












