Beschreibung
Située au calme dans le charmant village de Praz (Vully), cette charmante villa pieds dans l'eau saura vous séduire par sa situation prestigieuse et unique. A l'abri des regards, la partie de la propriété donnant sur le lac profite d'une grande terrasse permettant d'offrir à ses convives des instants de tranquillité suprême avec une somptueuse vue panoramique.
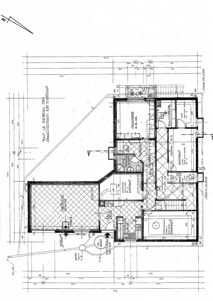
Le terrain d'une surface totale de 2'018 m² offrant de l’espace et de l’intimité est situé entre deux parcelles agricoles et viticoles au bord du lac. Cette belle résidence a été construite en 1970 et possède une répartition spatiale bien étudiée privilégiant espace et lumière. Elle se compose d’une habitation principale de 5½ pièces et d’un grand appartement de 2½ pièces au rez-de-chaussée inférieur avec entrée indépendante. Possibilité de réunir les objets et de créer une seule habitation de 8 pièces.
Les amoureux du lac et du calme sauront apprécier le ponton privé relié à la propriété permettant de s'échapper pour une ballade romantique en bateau.
Rez-de-chaussée :
Hall d'entrée - Séjour /salle à manger - Cuisine habitable - 3 Chambres à coucher - Bureau - WC visiteur - Salle de bains /douche - Terrasse - Jardin - Garage avec acccès direct dans la maison
Rez-de-chaussée inférieur :
Hall - WC - Cave - Cave à vin - Buanderie - Chaufferie
Appartement - Rez inférieur :
Chambre à coucher - Séjour /salle à manger - Cuisine - Coin bureau - Salle de douche avec toilettes
Annexes :
Garage
Annexes :
Garage - Couvert à 2 voitures
Annexes :
Garage - Couvert à 2 voitures - Ponton et place d'amarrage privé
Annexes :
Garage - Couvert à 2 voitures - Ponton et place d'amarrage privé - Cabanon
Le terrain d'une surface totale de 2'018 m² offrant de l’espace et de l’intimité est situé entre deux parcelles agricoles et viticoles au bord du lac. Cette belle résidence a été construite en 1970 et possède une répartition spatiale bien étudiée privilégiant espace et lumière. Elle se compose d’une habitation principale de 5½ pièces et d’un grand appartement de 2½ pièces au rez-de-chaussée inférieur avec entrée indépendante. Possibilité de réunir les objets et de créer une seule habitation de 8 pièces.
Les amoureux du lac et du calme sauront apprécier le ponton privé relié à la propriété permettant de s'échapper pour une ballade romantique en bateau.
Rez-de-chaussée :
Hall d'entrée - Séjour /salle à manger - Cuisine habitable - 3 Chambres à coucher - Bureau - WC visiteur - Salle de bains /douche - Terrasse - Jardin - Garage avec acccès direct dans la maison
Rez-de-chaussée inférieur :
Hall - WC - Cave - Cave à vin - Buanderie - Chaufferie
Appartement - Rez inférieur :
Chambre à coucher - Séjour /salle à manger - Cuisine - Coin bureau - Salle de douche avec toilettes
Annexes :
Garage
Annexes :
Garage - Couvert à 2 voitures
Annexes :
Garage - Couvert à 2 voitures - Ponton et place d'amarrage privé
Annexes :
Garage - Couvert à 2 voitures - Ponton et place d'amarrage privé - Cabanon































