Beschreibung
Situé dans l'un des quartiers les plus prisés de Grandvaux, sans nuisance, cette parcelle de 1'842 m² vous offre un emplacement privilégié avec une vue imprenable sur le lac Léman et les paysages alpins environnants.
Vous pourrez profiter de la tranquillité de la campagne tout en étant à proximité des écoles réputées, des commerces locaux et des infrastructures de loisirs.
Vous bénéficierez également d'un accès facile aux transports en commun.
Ce terrain offre une vue imprenable sur le lac Léman et les paysages alpins environnants et vous permet de construire une surface bâtie maximale de 386m² et une surface maximale de plancher utile de 676,9m².
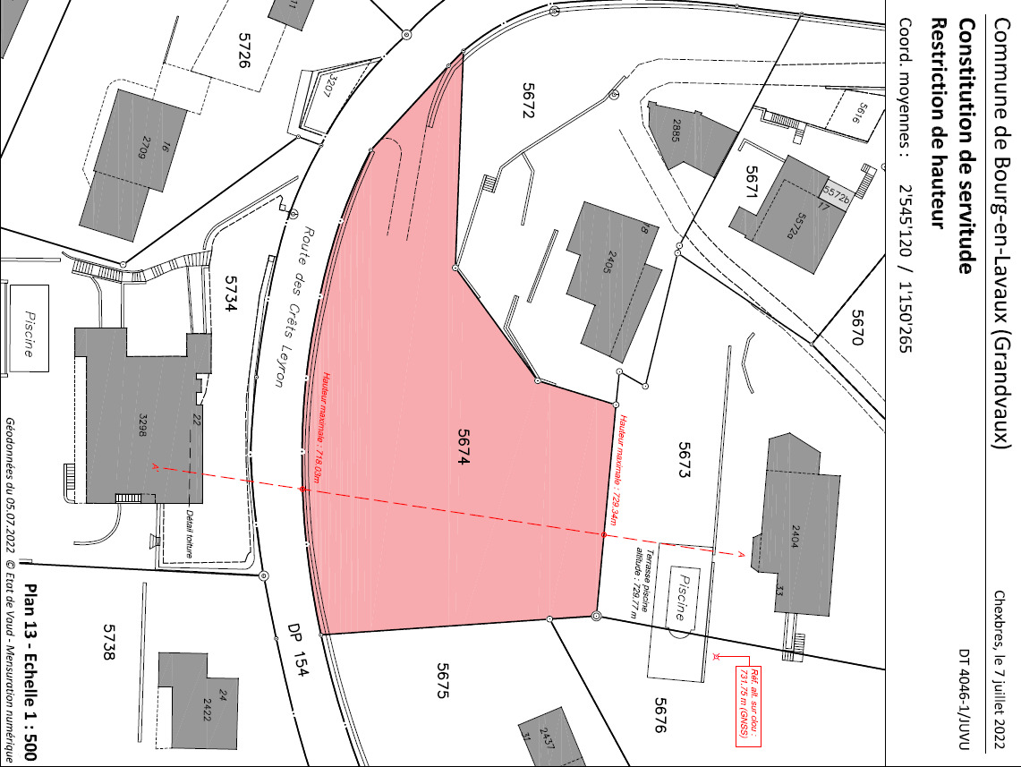
Il est à noter qu'il y a une servitude de hauteur qui limite le projet selon la hauteur de 729,34m en amont et 718,03m en aval selon le document en annexe du dossier.
De plus, un projet pour une villa d'architecte de 437m² habitables et 680m² utiles avec piscine à débordement et garage pour 5 voitures a déjà l'aval de la commune et passe en commission du Lavaux fin juin. Le dossier peut vous être transmis sur demande. Ceci-dit, la parcelle est vendue libre de tout mandat d'architecte.
VENTE SANS CONDITION.
Vous pourrez profiter de la tranquillité de la campagne tout en étant à proximité des écoles réputées, des commerces locaux et des infrastructures de loisirs.
Vous bénéficierez également d'un accès facile aux transports en commun.
Ce terrain offre une vue imprenable sur le lac Léman et les paysages alpins environnants et vous permet de construire une surface bâtie maximale de 386m² et une surface maximale de plancher utile de 676,9m².
Il est à noter qu'il y a une servitude de hauteur qui limite le projet selon la hauteur de 729,34m en amont et 718,03m en aval selon le document en annexe du dossier.
De plus, un projet pour une villa d'architecte de 437m² habitables et 680m² utiles avec piscine à débordement et garage pour 5 voitures a déjà l'aval de la commune et passe en commission du Lavaux fin juin. Le dossier peut vous être transmis sur demande. Ceci-dit, la parcelle est vendue libre de tout mandat d'architecte.
VENTE SANS CONDITION.
Konstruktion
Verteilung
Eigenschaften
Eigenschaften
Umgebung
- Villenviertel
- Ländlich
- Berge
- See
- Bushaltestelle
- Primarschule
- Sekundarschule
- Internationale Schulen
Aussenbereich
- Ruhige Lage
- Begrünung
Ausrichtung
- Süden
Besonnung
- Optimal
- Ganzer Tag besonnt
Aussicht
- Unverbaubar
- Panoramasicht
- See
- Berge
Distanzen
Distanzen
Öffentliche Verkehrsmittel
550 m
Primarschule
500 m
Geschäfte
150 m
Restaurants
600 m





