Beschreibung
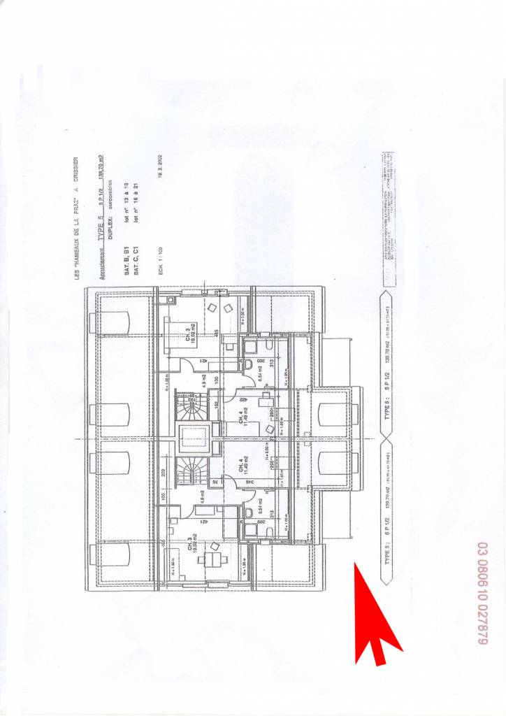
Situé dans un bâtiment construit en 2005 proche du centre du vieux village de Crissier, cet appartement en duplex de 5,5 pièces offre une surface habitable d'environ 140 m2. Distribué sur 2 niveaux, il comporte: une entrée, un séjour ouvert sur la cuisine avec coin repas, un balcon et 2 chambres de grande dimension avec 2 salles d'eau et à l'étage: 2 chambres avec une salle de douche.
Une cave, une place de parc intérieure ainsi que 2 places de parc extérieures complètent ce bien.
Toutes les commodités (commerces, transports publics, axes autoroutiers, etc...) sont à proximité immédiate.
Prix de l'appartement: CHF 915'000.-
Pl. de parc intérieure: CHF 30'000.-
2 places de parc ext.: CHF 30'000.-
Montant total: CHF 975'000.-
Combles :
Hall d'entrée - Cuisine ouverte avec coin repas - Séjour avec balcon - 2 Chambres à coucher - Salle de bains - Salle de douche avec toilettes - Balcon de 6.6 m²
Surcombles :
2 Chambres à coucher - Salle de douche avec toilettes
Annexes :
place de parc intérieure (n°2)
Annexes :
place de parc intérieure (n°2) - 2 places de parc extérieures
Annexes :
place de parc intérieure (n°2) - 2 places de parc extérieures - Cave
Immeuble :
Chaufferie
Immeuble :
Chaufferie - Buanderie
Immeuble :
Chaufferie - Buanderie - Local à vélos
Immeuble :
Chaufferie - Buanderie - Local à vélos - Local container
Une cave, une place de parc intérieure ainsi que 2 places de parc extérieures complètent ce bien.
Toutes les commodités (commerces, transports publics, axes autoroutiers, etc...) sont à proximité immédiate.
Prix de l'appartement: CHF 915'000.-
Pl. de parc intérieure: CHF 30'000.-
2 places de parc ext.: CHF 30'000.-
Montant total: CHF 975'000.-
Combles :
Hall d'entrée - Cuisine ouverte avec coin repas - Séjour avec balcon - 2 Chambres à coucher - Salle de bains - Salle de douche avec toilettes - Balcon de 6.6 m²
Surcombles :
2 Chambres à coucher - Salle de douche avec toilettes
Annexes :
place de parc intérieure (n°2)
Annexes :
place de parc intérieure (n°2) - 2 places de parc extérieures
Annexes :
place de parc intérieure (n°2) - 2 places de parc extérieures - Cave
Immeuble :
Chaufferie
Immeuble :
Chaufferie - Buanderie
Immeuble :
Chaufferie - Buanderie - Local à vélos
Immeuble :
Chaufferie - Buanderie - Local à vélos - Local container








