Beschreibung
Située dans un quartier de villas calme et famillial, cette villa mitoyenne a été érigée en 1995. De bonne construction et bien entretenue, elle offre une distribution agréable avec la partie jour bien séparée de la partie nuit.
La terrasse bien exposée est accessible de la cuisine ou du séjour ce qui facilite l'organisation.
Le centre ville de Lausanne est à 15 minutes en voiture ou avec le M2. Le centre du village d'Epalinges offre, quant à lui, toutes les commodités à seulement 1 km.
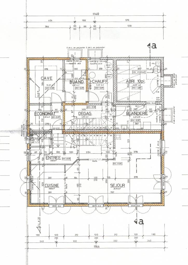
Rez :
Hall d'entrée - Toilettes - Séjour avec cheminée - Salle à manger - Cuisine - Economat - Cave - Buanderie - Terrasse
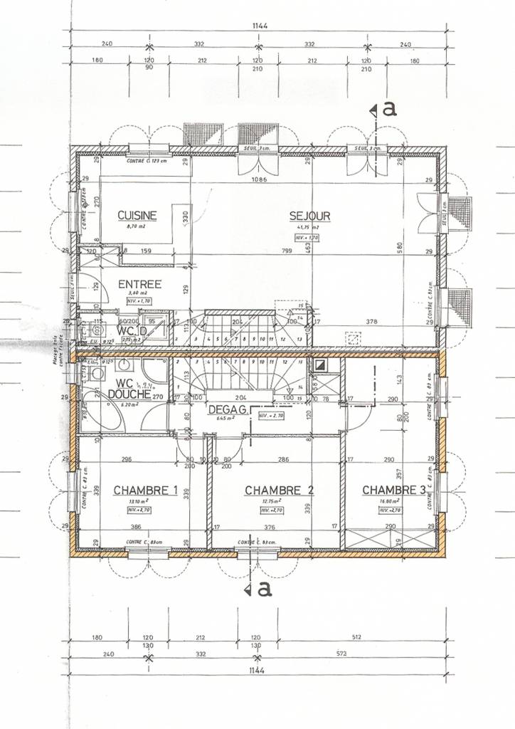
1er :
Corridor - Salle de bains avec douche et toilettes - 3 Chambres à coucher
Combles :
Salle de douche avec toilettes - Chambre à coucher - Bureau - Sauna
Annexes :
Cabane de jardin
Annexes :
Cabane de jardin - Garage
Annexes :
Cabane de jardin - Garage - Place de parking
Annexes :
Cabane de jardin - Garage - Place de parking - Place de parking visiteurs
Parties communes :
Chaufferie
La terrasse bien exposée est accessible de la cuisine ou du séjour ce qui facilite l'organisation.
Le centre ville de Lausanne est à 15 minutes en voiture ou avec le M2. Le centre du village d'Epalinges offre, quant à lui, toutes les commodités à seulement 1 km.
Rez :
Hall d'entrée - Toilettes - Séjour avec cheminée - Salle à manger - Cuisine - Economat - Cave - Buanderie - Terrasse
1er :
Corridor - Salle de bains avec douche et toilettes - 3 Chambres à coucher
Combles :
Salle de douche avec toilettes - Chambre à coucher - Bureau - Sauna
Annexes :
Cabane de jardin
Annexes :
Cabane de jardin - Garage
Annexes :
Cabane de jardin - Garage - Place de parking
Annexes :
Cabane de jardin - Garage - Place de parking - Place de parking visiteurs
Parties communes :
Chaufferie








