Beschreibung
Située à mi-chemin entre Lausanne et Genève, la commune de Rolle a su conserver le charme des bourgades d’autrefois. Sise au bord du lac Léman, elle offre de belles promenades aux bord des quais et tout un éventail d’activités sportives : voile, natation, ski nautique, tennis, équitation, golf et bien d’autres. En outre la commune dispose de nombreuses facilités : commerces, transports en commun, écoles.
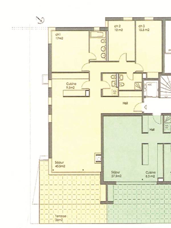
Cet appartement de 4.5 pièces aux lignes résolument contemporaines se trouve sur le pignon Sud-Ouest de la résidence dont la réalisation et la conception ont été particulièrement soignées.
Il profite d’une surface pondérée de 155 m2 qui se compose d’une généreuse pièce à vivre donnant accès à la terrasse, d’une salle à manger, d’une cuisine de marque, de 3 chambres dont une suite parentale qui dispose de sa salle de bains et de son dressing, d’une salle de bains avec douche à l’italienne. Une cave et 2 places de parking en souterrain complètent ce bien.
Sa superbe terrasse donne sur un ravissant jardin privatif et arboré de 150 m2.
Toutes ses parties annexes procurent à ce bien fonds le confort de vie d’une villa.
Prix de l’appartement : CHF 1'430'000.-
Prix places de parking : CHF 60'000.-
Prix total : CHF 1'490'000.-
Pour plus d’information : www.rolle.ch
Rez-de-chaussée :
Hall d'entrée - Cuisine avec ilot central, électroménager de marque Miele - Salle à manger - Séjour avec accès à la terrasse de 36 m2 - 2 Chambres à coucher - Salle de bains avec douche à l'italienne - Chambre à coucher parentale avec sa salle de bains (double vasque) et dressing - Buanderie
Annexes :
Jardin de 150 m²
Annexes :
Jardin de 150 m² - 2 Places de parking en souterrain
Annexes :
Jardin de 150 m² - 2 Places de parking en souterrain - Cave
Immeuble :
Chaufferie
Immeuble :
Chaufferie - Place de jeux
Immeuble :
Chaufferie - Place de jeux - 10 Places de parking visiteurs
Cet appartement de 4.5 pièces aux lignes résolument contemporaines se trouve sur le pignon Sud-Ouest de la résidence dont la réalisation et la conception ont été particulièrement soignées.
Il profite d’une surface pondérée de 155 m2 qui se compose d’une généreuse pièce à vivre donnant accès à la terrasse, d’une salle à manger, d’une cuisine de marque, de 3 chambres dont une suite parentale qui dispose de sa salle de bains et de son dressing, d’une salle de bains avec douche à l’italienne. Une cave et 2 places de parking en souterrain complètent ce bien.
Sa superbe terrasse donne sur un ravissant jardin privatif et arboré de 150 m2.
Toutes ses parties annexes procurent à ce bien fonds le confort de vie d’une villa.
Prix de l’appartement : CHF 1'430'000.-
Prix places de parking : CHF 60'000.-
Prix total : CHF 1'490'000.-
Pour plus d’information : www.rolle.ch
Rez-de-chaussée :
Hall d'entrée - Cuisine avec ilot central, électroménager de marque Miele - Salle à manger - Séjour avec accès à la terrasse de 36 m2 - 2 Chambres à coucher - Salle de bains avec douche à l'italienne - Chambre à coucher parentale avec sa salle de bains (double vasque) et dressing - Buanderie
Annexes :
Jardin de 150 m²
Annexes :
Jardin de 150 m² - 2 Places de parking en souterrain
Annexes :
Jardin de 150 m² - 2 Places de parking en souterrain - Cave
Immeuble :
Chaufferie
Immeuble :
Chaufferie - Place de jeux
Immeuble :
Chaufferie - Place de jeux - 10 Places de parking visiteurs










